︎
KECK
Architecture+Design
Selected work
Studio
Contact
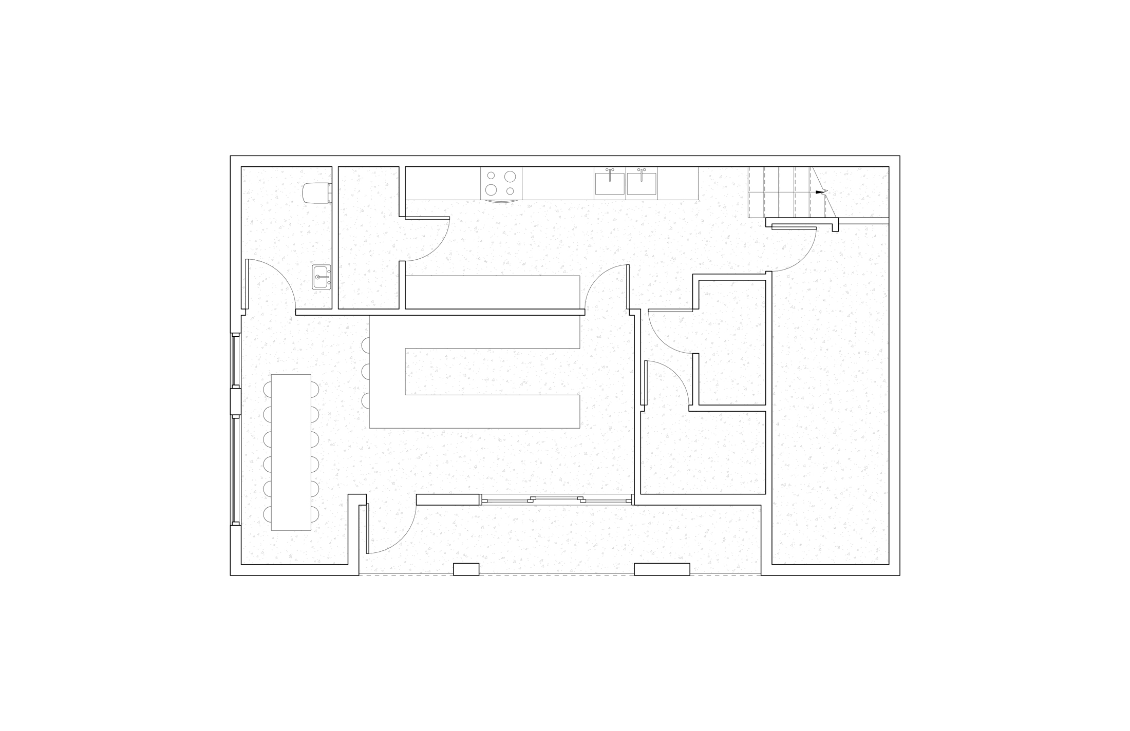
Reed Charcuterie
Proposed for a local chef. A small curing room is connected to a shop and tasting room for sampling and sales.
< prev
home
next >